Ljust kontor med möjligheter mitt i Sisjön
Välkommen till ett kontor med full flexibilitet, välj mellan att hyra i befintligt skick, med en mellanrenovering eller en total renovering. Sätt er egna prägel på kontoret. I dagsläget är det glaspartier till kontorsdelarna för att få in så mycket ljus som möjligt samt parkettgolv.
I samband med lokalanpassning eller ombyggnad är vår ambition att använda återbrukat material så långt det är möjligt och vi prioriterar hållbarhet för minsta möjliga miljöpåverkan
Lokalen ligger i plan 2 utan hiss, är tillgänglighetskrav ett krav för er verksamhet så går det att lösa.
Välkomen att kontakta oss för mer info och visning!
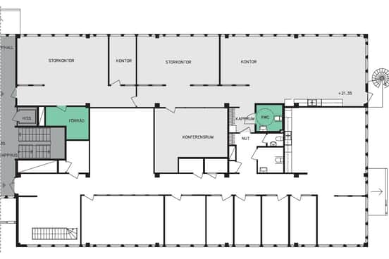
Planlösning
Dagens planlösning har många rum och pentryt lite avskilt. Ytan går att anpassa, vi är flexibla och ni väljer vad som passar er!
Området
Sisjön ligger direkt söder om Söderleden och drygt två kilometer sydost om Frölunda torg samt fyra kilometer sydväst om Mölndals centrum. Området var under 1970-talet mer ett industriområde men har sedan 2000-talet fått en markant mer handelsinriktning än tidigare. Stora infrastruktursatsningar har gjorts för anpassning mot de bilburna kunderna till de stora handelsaktörerna som etablerat sig på området.
Området är omtyckt även av traditionella verksamheter som har lager/kontor och industribehov och som vill ligga lättillgängligt för sin kunder och personal. Här finns ett gott utbud av service, friskvård och lunchrestauranger.
Inom företagsområdet Högsbo-Sisjön finns mer än 1 700 företag i fler än 200 branscher. Här arbetar dagligen fler än 30 000 personer. Eftersom området är expansivt och hela tiden förändrar sig så blir de exakta siffrorna fort inaktuella så siffrorna är ungefärliga. Företagsområdet är Nordens största med en yta på 3.070.000 m2.
Bara några få kilometrar från Sisjön ligger naturreservatet Sandsjöbacka med naturstigar, vandringsleder, eldplatser mm. Sisjöns golfklubb finns också i området i direkt närhet till Söderleden.
Besök gärna området Högsbo-Sisjöns företagarförening: http://hsff.nu/
Fastigheten
Fastigheten är belägen i Sisjöns industriområde som ligger i västra Göteborg.
Inom området finns tillgång till all typ av närservice i form av banker, post, lunchrestauranger, dagligvaruhandel och detaljister.
- Sätt er egna prägel
- Fönster i tre riktningar
- Flexibel uthyrning
Faciliteter i fastigheten
Service i området
Energi & hållbarhet
- Total energianvändning: 40 kWh / m², år
- Energi CO2-påverkan: 0,1 kg CO₂ / m², år
Andra hyresgäster i fastigheten
Karta
Dokument
Broschyr
Kontaktperson

Nyfiken på den här lokalen? Eller behöver du hjälp att hitta rätt lokal för din verksamhet? Oavsett om du vet exakt vad du söker eller om du behöver rådgivning, så finns vi här och hjälper till.
Vi ser fram emot att höra av dig.








