Lager, butik eller showroom med öppen planlösning
Välkommen till denna butikslokal och lagerlokal belägen i Högsbo industriområde nära handelsområde 421 och Frölunda Torg. Med närhet till påfartsled för Söderleden och Daghammarskiöldsleden är det enkelt för både kunder och anställda att ta sig hit.
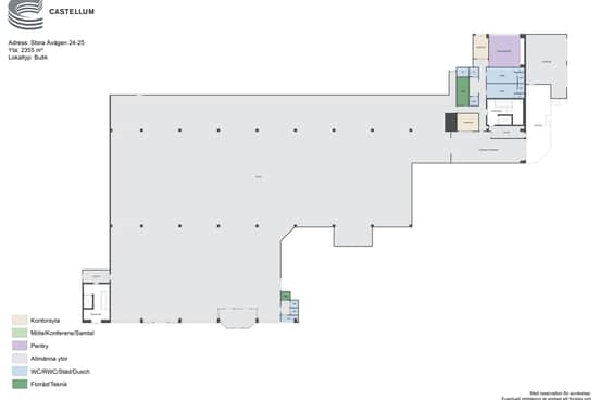
Lokalen består av en generös öppen yta som antingen kan nyttjas som den är antingen som lager eller butik eller så kan den delas av för att skapa ett butiks- och ett lagerutrymme. Lastkajen på fastighetens baksida nås från lagerdelen.
Här finns både pentry, konferensrum och en fin WC för gäster och personal.
Visst låter det bra? Hör av dig till mig så berättar jag mer!
Planlösning
Lokalen är öppen och ljus med några få pelare.
Det finns ett konfersenrum och en HWC med möjlighet att bygga till en eller flera extra toaletter. Inlastningen är via lastkaj med möjlighet att installera en lasthiss för att kunna ta på emot markleveranser. Detta går även bra att ta in via entrén till lokalen.
Lokalen har ett pentry som går att skärma av med väggar vid önskemål.
Det finns möjlighet att hyra kontor i intilliggande fastighet.
Området
Högsbo-Sisjön industriområde har vuxit fram till att bli Nordens största företagsområde med drygt 1000 företag. Högsbo-Sisjön industriområde ligger i sydvästra Göteborg inte lågt från Frölunda torg och Mölndals centrum. Det centrala läget och närhet till stora trafikleder har gjort området mycket attraktivt för företag i olika branscher.
Kommunikationer
Kommunikationen från F.O. Petersons Gata 2 är mycket god. Från fastigheten kommer du snabbt och lätt ut på Dag Hammarskköldsleden. Den kollektiva kommunikationen är också bra, precis utanför fastigheten finns en busshållsplats. Därifrån går buss nr 82 samt buss nr 758. Dessa bussar går med ca 30 minuters mellanrum till centralstationen.
Service
Fastigheten ligger i Högsbo industriområde och här är serviceutbudet stort. I området finns dagligvaruhandel, köpcentrum, restauranger, gym och bank.
Fastigheten
Kontorshus med servicebutiker och restaurang samt en stor lagerbyggnad
- Butik
- Lager
- Besöksparkering
Faciliteter i fastigheten
Service i området
Energi & hållbarhet
- Hållbarhetscertifiering: LEED O+M, Silver
- Total energianvändning: 70 kWh / m², år
- Energi CO2-påverkan: 3,7 kg CO₂ / m², år
Andra hyresgäster i fastigheten
Karta
Dokument
Broschyr
Kontaktperson

Nyfiken på den här lokalen? Eller behöver du hjälp att hitta rätt lokal för din verksamhet? Oavsett om du vet exakt vad du söker eller om du behöver rådgivning, så finns vi här och hjälper till.
Vi ser fram emot att höra av dig.








